オフィスのフロアコンセントは電源計画から始めよう-「安心安全」な計画の立て方
- 2026/01/06
- 2026/01/06

- ブレーカーが落ちることを防ぐ
- 限られた電源容量の適正配分
電気の事前配線があるかどうかを確認しよう
上記のような事前配線がある場合

事前配線がない場合

電気工事の手順
STEP 1 電源計画を立てる
STEP 2 ハーネスOAタップを選ぶ
STEP 3 ジョイントボックスの場所・個数を決める
STEP1
電源計画を立てる
-
1.レイアウトを用意する

-
2.電気を利用する機器を記入する

-
3.消費電力を書き込む

※以下の消費電力を目安にします
【消費電力目安】
デスクトップPC :200W
ノートPC :50W
液晶モニター :30W
インクジェットプリンタ :100W
小型レーザープリンタ :300W
シュレッダー :300W
USB充電器 :10W
卓上扇風機 :10W
電子レンジ :600W
★電気ケトル :1300W
★複合機・大型レーザープリンタ :1500W
※正確な消費電力はお使いの機器仕様をご確認ください
-
4.グループを作り線で囲む

- 1グループ1500W-2000Wを目安に線を囲みます
- 1グループで、1つのブレーカーを使います
- 1つのブレーカーにつき2000Wの 電気容量を供給できます
- 配線工事のしやすさを考慮します
- 今後の管理しやすさを考慮します
- ★マークの機器は1台で1グループにします
上記の場合は、5つのグループになりますので、ブレーカーを5つ利用します。そのため、空きブレーカーが5つ必要になります。
「長期間使える安全な設計をしたい」という場合は電気のプロに依頼することも検討してみましょう。
STEP2
ハーネスOAタップを選ぶ
ハーネスOAタップを選ぶポイントは以下の3つです
- 口数
- ケーブル長さ
- カラー
1.口数
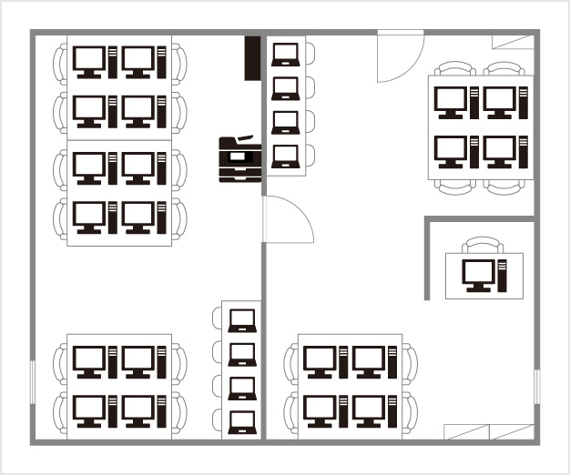
今回は、あるレイアウトを参考に電源計画を立ててみます。
【 2口 】
複合機など消費電力が
大きい物を接続します

【 4口 】
最も一般的な口数です。
最低限の機器を接続できます。

【 6口 】
最近採用が増えている口数です。マルチディスプレイや、USB充電器などを利用する場合に便利です。

【 8口 】
2席につき1つのOAタップとする場合や、接続機器数が多いケースに便利です。
2.ケーブル長さ

【 3m 】
最も一般的な長さです。ジョイントボックスから近い距離に適しています。

【 5m 】
ジョイントボックスから離れた距離に適しています。
2-1デスク上にOAタップを
おく場合のケーブル長さ
※ジョイントボックスに最も近いテーブルは3m
※机1つ分離れた場合は5mを推奨
2-2デスク下にOAタップを
おく場合のケーブル長さ
※1つ離れたテーブルぐらいまでは3mでもOK
※かなり離れたテーブルは5mを推奨
3.カラー
カラーで分けることで利用者に注意を促しやすくなり、当初予定していた電源計画を維持しやすくなります例)「カラーコンセントは利用しないでください」
例)「カラーコンセントは特定機器のみ接続可能」
STEP3
ジョイントボックスの場所・個数を決める
-
STEP1で作成した図に番号をつける

-
1.水色の枠
ジョイントボックス(2分岐):2つ
OAタップ :3つ
-
2.ピンク色の枠
ジョイントボックス(2分岐):2つ
OAタップ :3つ
-
3.オレンジ色の枠
ジョイントボックス(2分岐):2つ
OAタップ :3つ
-
4.緑色の枠
ジョイントボックス(2分岐):2つ
OAタップ :3つ
-
5.紫色の枠
ジョイントボックス(2分岐):1つ
OAタップ :1つ
まとめ
オフィスの電気は、なんとなくOAタップを増やせばいい…という話ではありません。まず大事なのは「電源計画」。どこでどれだけ電気を使うのかを整理しないと、ブレーカーが落ちたり、使いにくい環境になります。
事前配線の有無を確認し、機器ごとの消費電力を把握して、グループ分けで容量を調整することが重要です。
さらに、ハーネスOAタップの口数・ケーブル長さ・カラーを適切に選び、ジョイントボックスの配置まで含めて設計することで、無理のない電源環境が整います。
「とりあえずつなぐ」のではなく「最初に設計する」。これが失敗しないオフィス電源の基本です。




事前配線があるケースでも、自社が必要とする電源容量に不足があれば追加配線が必要となります。